WELD IMMO a le plaisir de vous faire découvrir cette superbe villa idéalement située dans le vill...

Prêt à commencer ? Demandez dès aujourd'hui une évaluation gratuite de votre propriété. Nous évaluerons votre bien immobilier de manière professionnelle et précise, vous fournissant ainsi une base solide pour votre décision de vente.
WELD IMMO a le plaisir de vous faire découvrir cette superbe villa idéalement située dans le vill...
WELD IMMO a le plaisir de vous présenter cet appartement 2 chambres idéalement situé à Verviers, ...
WELD IMMO a le plaisir de vous présenter cette maison unifamiliale 3 chambres à louer, idéalement...
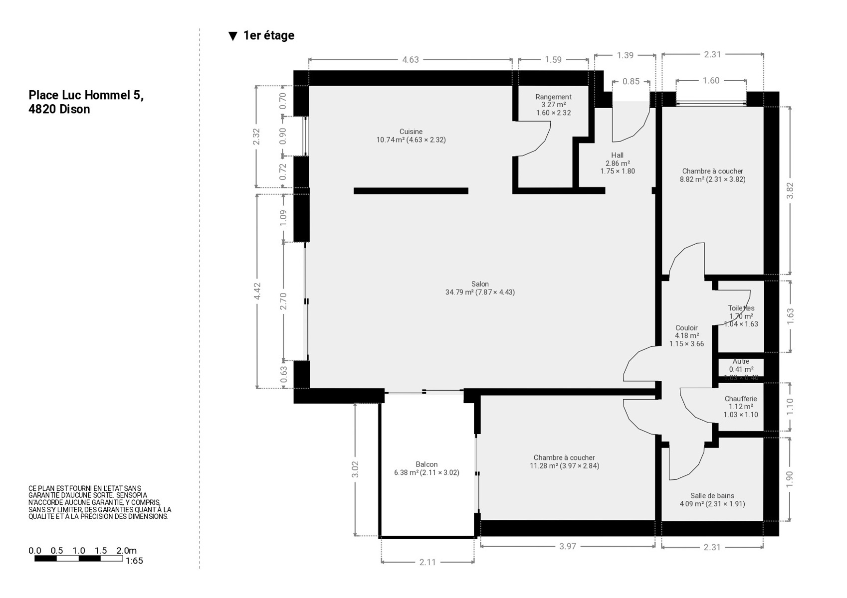
WELD IMMO a le plaisir de vous faire découvrir ce charmant appartement situé à Dison, à proximité...